E-Mail Immobilienmakler von Ferienwohnungen in Tbilisi
Immobilienmakler Apartments in Tbilisi Georgien
Altstadt Tblisi
Tbilisi Georgien
Immobilienmakler Verkäufer Ferienwohnungen Apartments in der Altstadt von Tblisi Georgien
Apartments Tblisi kaufen
Ferienwohnungen Tblisi kaufen
Wohnungen in Tblisi kaufen

Kleines Apartment / Ferienwohnung in der historischen Altstadt von Tbilisi Georgien zum Kaufen / Verkäufer

Tblisi kleines Apartment in der Altstadt zum Kaufen
  • Lage: in der Altstadt von Tbilisi, im historischen Stadtkern
  • im 2. Obergeschoss
  • Wohnfläche Apartment / Ferienwohnung: 59,34 m² mit 3 Zimmern
    ( Wohnzimmer mit offener Küche, 2 Schlafzimmer, Duschbad, Abstellraum und Keller )
  • Kaufpreis Apartment / Ferienwohnung: 67.000,- €
    Weiter Informationen zum Apartment / Wohnung / Eigentumswohnung auf Anfrage !

Apartment / Wohnung / Eigentumswohnung / Ferienwohnung in Tbilisi

Apartment in der historischen Altstadt von Tbilisi
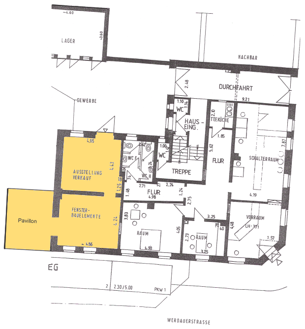
Grundriss vom Apartment in Tbilisi
Wohnzimmer vom Apartment
Wohnbereich der Ferienwohnung in Tbilisi
Straße vom Apartment Ferienwohnung in Tblisi
Ferienwohnung in Tblisi zum Kaufen
Blick von der Küche des Apartments
Küche vom Apartment Ferienwohnung in Tblisi
Schlafzimmer vom Apartment
Zimmer der Ferienwohnung in Tblisi Georgien
Duschbad der Ferienwohnung Apartment in Tblisi